Você já comprou uma planta de banheiro pronta e descobriu que o vaso sanitário fica exatamente na frente da porta? Isso é mais comum do que parece e um dos maiores erros de projeto. A verdade é que um layout mal planejado transforma o banheiro num espaço desconfortável, mesmo que os acabamentos sejam caros.
Mas não se preocupe: com as medidas certas e algumas estratégias simples, dá para criar um banheiro funcional e bonito, seja ele minúsculo ou espaçoso. O segredo está em entender o fluxo de uso e respeitar as dimensões mínimas de circulação.
Planta de banheiro: como evitar erros de layout e ganhar espaço
Antes de pensar em revestimentos ou cores, o essencial é definir a posição de cada item. O vaso sanitário, por exemplo, deve ficar afastado da entrada, com pelo menos 35 a 40 cm de espaço lateral livre. Já o box precisa de no mínimo 80 cm de largura – menos que isso, você vai se sentir apertado até no banho.
Para banheiros estreitos, o layout linear funciona bem: pia, vaso e box em sequência. Já nos ambientes quadrados, o ideal é centralizar a circulação. Uma dica prática: deixe 60 cm de corredor livre na frente da pia e 70 cm na frente do vaso. Essas medidas são padrão e garantem conforto até para quem tem mobilidade reduzida.
Ideias e Inspirações

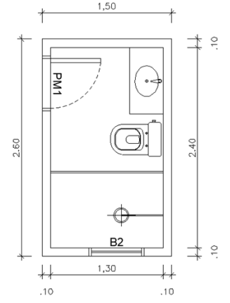
Layout para Banheiro Pequeno

Layout Linear
O layout linear alinha os elementos principais em uma única parede, otimizando o aproveitamento espaço banheiro em corredores ou ambientes estreitos. Este design é crucial para a funcionalidade em plantas de banheiro compactas.
Layout Lateral
O layout lateral distribui os itens em lados opostos, aproveitando a largura de corredores ou espaços mais amplos. Ele oferece boa circulação e permite a separação visual entre áreas molhadas e secas.
Layout Quadrado
O layout quadrado concentra a circulação no centro, com os elementos dispostos nas paredes. É ideal para otimizar a movimentação em banheiros com formato mais regular.
Leia também: 72 plantas para colocar no quarto que purificam o ar e não morrem na sombra
Plantas de Banheiro: Medidas Ideais

Box com 80 cm de Largura
A norma técnica para box de banheiro prevê uma largura mínima de 80 cm para garantir conforto e acessibilidade. Este vão é essencial para a circulação e uso seguro do espaço.
Vaso Sanitário: Posicionamento e Espaço
O vaso sanitário idealmente posicionado fora da linha de visão direta da porta, com 70-80 cm de espaço total para sua instalação. Um vão de 35-40 cm de cada lado do eixo é recomendado para conforto.
Circulação Livre: 60 cm à Frente da Pia
Manter 60 cm de circulação livre à frente da pia é fundamental para a ergonomia do banheiro. Este espaço livre garante que o uso da bancada e espelho seja prático e seguro.
| Item | Medida Mínima |
|---|---|
| Box | 80 cm |
| Vaso Sanitário (Vão Total) | 70-80 cm |
| Circulação (Pia) | 60 cm |
Decoração de Banheiro Moderno

Cores Claras para Ampliar
A paleta de cores claras, como branco, bege e tons pastel, é um truque visual para ampliar ambientes pequenos. Essas cores refletem a luz, criando uma sensação de maior espaço e leveza.
Leia também: 131 ideias de ondulato planta para decorar com folhas onduladas
Espelhos Grandes e Nichos
Espelhos grandes duplicam a percepção do ambiente, enquanto nichos integrados ao box oferecem organização sem ocupar espaço extra. Ambos são elementos chave na decoração de banheiro moderno.
Iluminação Funcional e Agradável
Combine luz branca geral no teto com luz amarela (quente) direcionada para a área do espelho. Essa iluminação cria um ambiente funcional e acolhedor, essencial para o uso diário.
Banheiro Rústico: Charme e Aconchego

Madeira e Pedra Natural
O uso de madeira em bancadas ou detalhes e pedras naturais em revestimentos traz o charme rústico. Essas texturas e materiais criam uma atmosfera acolhedora e conectada à natureza.
Cores Terrosas e Texturas
Tons terrosos como marrom, verde musgo e terracota complementam o estilo rústico. A combinação com texturas que remetem ao natural intensifica a sensação de aconchego.
Detalhes Artesanais
Objetos artesanais, como cestarias e luminárias com acabamento rústico, adicionam personalidade. Eles reforçam a estética do banheiro rústico, tornando-o único e convidativo.
Banheiro Minimalista: Simplicidade Elegante

Linhas Retas e Formas Geométricas
O minimalismo preza por linhas retas e formas geométricas puras em louças e móveis. Essa simplicidade visual resulta em um ambiente clean e organizado.
Paleta de Cores Neutras
Cores neutras como branco, cinza e preto dominam o banheiro minimalista, criando uma base serena. A ausência de excessos visuais promove a tranquilidade e o foco no essencial.
Materiais Lisos e Acabamentos Foscos
Materiais com superfícies lisas e acabamentos foscos, como porcelanatos e metais sem brilho, reforçam a estética minimalista. Eles evitam distrações e contribuem para a harmonia do espaço.
Banheiro Acessível: Conforto e Segurança

Barras de Apoio Estratégicas
A instalação de barras de apoio em pontos chave, como ao lado do vaso sanitário e dentro do box, é fundamental para a segurança. Elas oferecem suporte essencial para pessoas com mobilidade reduzida.
Vaso Sanitário Elevado e Assento
Um vaso sanitário ligeiramente mais alto e com assento confortável facilita o uso. Considere também a instalação de um assento com amortecimento para maior segurança.
Box Amplo e Sem Degraus
O box deve ser amplo, com 80 cm de largura mínima, e preferencialmente sem desníveis ou com rampas suaves. Isso garante fácil acesso e manobrabilidade para cadeiras de rodas ou andadores.
Banheiro com Banheira: Estilo e Relaxamento

Banheira de Imersão
A banheira de imersão, seja de canto ou vitoriana, transforma o banheiro em um spa privativo. Ela é o ponto focal para relaxamento e bem-estar.
Espaço e Ventilação Adequados
Certifique-se de que o banheiro com banheira tenha espaço suficiente para circulação e ventilação adequada. Isso evita acúmulo de umidade e garante o conforto.
Revestimentos Resistentes à Umidade
Utilize revestimentos resistentes à umidade nas áreas próximas à banheira, como porcelanatos ou pastilhas. Eles garantem a durabilidade e a segurança do ambiente.
Banheiro com Duas Cubas: Funcionalidade

Bancada Ampla
Uma bancada ampla é essencial para acomodar duas cubas confortavelmente. Ela oferece espaço de apoio para itens de higiene e maquiagem para duas pessoas simultaneamente.
Layout da Bancada
O layout da bancada com duas cubas pode ser linear ou com um pequeno recuo entre elas. A escolha depende do espaço disponível e da preferência estética, priorizando sempre o aproveitamento espaço banheiro.
Torneiras e Acessórios
Escolha torneiras adequadas ao estilo da decoração e que permitam fácil acesso às cubas. A organização do espaço ao redor das cubas é fundamental para a funcionalidade.
Leia também: 42 Ideias de Perfil de LED Banheiro que Transformam seu Banheiro
Galeria de Referências e Estilos

O box sem moldura é o padrão dos projetos contemporâneos. O vidro temperado de 8mm garante segurança e leveza visual.

Uma parede revestida com pastilhas de vidro ou cerâmica vira o ponto focal. Use na área do chuveiro ou atrás da pia.

Aquecedores de toalhas são itens de conforto que elevam a experiência. Escolha modelos elétricos com design minimalista.

Cestos de fibra natural ou palha organizam itens sem pesar no décor. Eles trazem textura e um toque artesanal.

A iluminação indireta em sancas ou nichos cria uma atmosfera de spa. Use fitas de LED com dimerizador para controlar a intensidade.

O piso porcelanato acetinado ou com textura evita escorregões e é fácil de limpar. Tons claros ampliam a sensação de espaço.

O banheiro é um santuário de autocuidado. Cada elemento deve convidar ao relaxamento e à contemplação.

A luz natural é o maior luxo de um banheiro. Se possível, amplie a janela ou use vidro canelado para difusão.

Toalhas e tapetes em tons neutros criam uma base serena. Toques de cor vêm nos acessórios e nas plantas.

Plantas como samambaias e lírios-da-paz adoram a umidade do banheiro. Elas purificam o ar e trazem vida ao ambiente.

Um banco de madeira ou mármore no box não é apenas funcional. É um convite para um banho mais longo e consciente.

Espelhos redondos ou ovais quebram a rigidez das linhas retas. Eles suavizam o espaço e refletem a luz de forma mais orgânica.
O banheiro que respira estilo e funcionalidade
Invista em nichos embutidos no box para organizar frascos sem poluir visualmente o ambiente. Essa solução libera bancadas e cria um design limpo e integrado.
Escolha revestimentos de formato retangular alongado, como pastilhas ou porcelanatos 15x90cm, para alongar paredes e dar sensação de pé-direito mais alto. A instalação na vertical potencializa esse efeito óptico.
Prefira cubas de apoio sobre bancadas de mármore ou quartzo para um toque de sofisticação hoteleira. Combine com metais escovados, como níquel ou bronze, para um contraste elegante.
Use espelhos com iluminação embutida em LED para abolir sombras no rosto e criar um ponto focal luminoso. A temperatura de cor ideal é 3000K, que valoriza a pele e o ambiente.
Em banheiros compactos, opte por portas de correr ou sanfonadas para economizar o espaço de abertura. Isso libera área para circulação e permite um layout mais flexível.
Perguntas que todo projetista ouve
Qual a largura mínima para um banheiro pequeno?
O ideal é que o ambiente tenha pelo menos 1,50m de largura para acomodar os três elementos principais sem apertos. Com 1,20m você consegue um layout linear funcional, mas perde espaço de circulação.
Vale a pena colocar banheira em banheiro pequeno?
Sim, se for uma banheira de hidromassagem compacta ou modelo esculpido, com no máximo 1,40m de comprimento. Lembre-se de que ela exige reforço estrutural no piso e acesso para manutenção hidráulica.
Como escolher a iluminação certa para o espelho?
Instale fitas de LED nas laterais ou no topo do espelho, com luz difusa e temperatura entre 2700K e 3000K. Evite luz pontual acima da cabeça, que cria sombras indesejadas no rosto.
O banheiro dos sonhos não precisa ser enorme, mas sim inteligente. Cada centímetro planejado com propósito transforma o ritual diário em um momento de prazer estético e funcional.
Agora é hora de pegar as medidas do seu espaço e testar as disposições sugeridas. Desenhe, meça, e não tenha medo de ousar nos acabamentos e na iluminação.
O futuro do design de banheiros é a personalização com alma. Ambientes que contam histórias através de materiais, luzes e texturas são os que realmente acolhem.

