Plantas de casas pequenas escondem um detalhe técnico que transforma metros quadrados em sensação de amplitude. Vou revelar o segredo que arquitetos experientes aplicam em 2026.
Como planejar a distribuição de ambientes em casas compactas para ganhar espaço real
O grande segredo? Não se trata apenas de reduzir medidas, mas de reprogramar fluxos. A planta ideal elimina metros perdidos em corredores desnecessários.
Aqui está o detalhe: Em projetos até 40m², a integração total entre sala e cozinha não é opção, é obrigação técnica. Cada parede removida ganha 0,80m de circulação útil.
Mas preste atenção: Erro comum é abrir tudo sem prever pontos de apoio. Você precisa de pelo menos 1,20m de bancada contínua para o dia a dia funcionar.
Em 2026, os melhores projetos usam o conceito de “área molhada seca” – cozinha aberta, mas com ilha de serviço discreta. Isso resolve o problema de odores sem fechar o ambiente.
Em Destaque 2026: Projetos modernos focam em integração de ambientes e aproveitamento inteligente de terrenos estreitos ou compactos, priorizando funcionalidade e custo reduzido.
Plantas de Casas Pequenas: O Detalhe Que Ninguém Conta (e Muda Tudo)
Se você tá pensando em construir ou reformar, e o espaço é o seu desafio, chegou no lugar certo! Casas pequenas não precisam ser sinônimo de aperto. Muito pelo contrário, com um bom projeto, elas podem ser super charmosas e funcionais.
O segredo não está só no tamanho, mas em como cada cantinho é pensado. Vamos desvendar o que realmente faz a diferença nesses projetos!

Projetos de Casas Compactas: Ideias para Espaços Reduzidos
Casas compactas são a resposta inteligente para quem busca praticidade sem abrir mão do conforto. A chave é pensar na planta como um organismo vivo, onde cada espaço se conecta e cumpre seu papel.
Integração Inteligente: A sala, cozinha e, às vezes, até a área de serviço se unem. Isso cria uma sensação de amplitude incrível, mesmo em poucos metros quadrados. Pense em bancadas que servem de mesa de jantar e divisores de ambiente.
Móveis Multifuncionais: Sofás-cama, mesas retráteis, camas com gavetões… esses móveis são seus melhores amigos. Eles transformam um cômodo em vários, adaptando-se às suas necessidades do dia a dia.
Espaços Verticais: Não se esqueça das paredes! Prateleiras altas, nichos embutidos e armários planejados até o teto aproveitam cada centímetro para armazenamento, liberando o chão e mantendo tudo organizado.

Layout de Casas Pequenas: Como Otimizar Cada Metro Quadrado
O layout é o esqueleto da sua casa pequena. Um bom layout faz o espaço parecer maior e facilita a circulação. Um erro comum é criar corredores longos e sem uso.
Fluxo Contínuo: Pense em como você se move pela casa. O ideal é que a circulação seja fluida, sem obstáculos. Portas de correr, por exemplo, economizam espaço comparadas às de abrir tradicionais.
Zonas de Uso Bem Definidas: Mesmo em um espaço integrado, é importante delimitar as áreas. Use tapetes para marcar a sala, um balcão para separar a cozinha, ou um jogo de cores diferente na parede para indicar um novo ambiente.
Aproveitamento de Cantos: Aqueles cantinhos esquecidos podem virar ótimos espaços. Um pequeno home office, uma estante de livros ou até um cantinho para plantas podem surgir ali.

Design de Residências Mínimas: Estética e Funcionalidade em Harmonia
Residências mínimas provam que tamanho não é documento quando o assunto é estilo. O design aqui foca em soluções inteligentes que unem beleza e utilidade.
Minimalismo Aconchegante: Cores claras, linhas retas e poucos objetos decorativos criam um visual limpo e moderno. Mas cuidado para não deixar o ambiente frio. Use texturas como madeira, tecidos naturais e plantas para trazer calor.
Iluminação Estratégica: Luz natural é um luxo em casas pequenas. Janelas amplas, portas de vidro e claraboias fazem o espaço parecer maior e mais arejado. À noite, aposte em uma iluminação indireta e em pontos de luz focados.
Cores que Ampliam: Tons neutros como branco, bege e cinza claro são clássicos. Eles refletem a luz e dão a sensação de que o espaço é maior. Para um toque de cor, use em detalhes, como almofadas ou quadros.

Plantas para Terrenos Estreitos: Soluções para Frentes Limitadas
Terrenos estreitos são um desafio comum no Brasil. Mas com plantas bem pensadas, é possível construir casas incríveis e funcionais.
Casas em Fita: O modelo mais comum é a casa comprida, onde os cômodos se sucedem. O segredo é garantir ventilação e iluminação em todos os ambientes, com janelas nas laterais ou no fundo.
Aproveitamento de Fachada: Em terrenos estreitos, a fachada ganha importância. Um bom paisagismo, uma porta de destaque ou uma varanda estreita podem fazer toda a diferença na aparência da casa.
O segredo para terrenos estreitos é pensar na verticalização e em soluções que tragam luz e ar para o interior. Evite paredes desnecessárias.

Soluções para Casas Econômicas: Construção e Manutenção Acessíveis
Construir uma casa pequena também pode ser mais econômico. O segredo está em escolher materiais inteligentes e um projeto enxuto.
Materiais Inteligentes: Opte por materiais que ofereçam bom custo-benefício e baixa manutenção. Tijolos aparentes, blocos de concreto e telhas cerâmicas são opções populares e acessíveis.
Projeto Simples: Evite muitos recortes, telhados complexos e acabamentos caros. Um design mais retilíneo e com poucos detalhes construtivos diminui o custo da obra.
| Material | Custo Médio (m²) | Manutenção |
| Tijolo Comum | R$ 40 – R$ 70 | Baixa |
| Bloco de Concreto | R$ 35 – R$ 60 | Baixa |
Otimização de Recursos: Planeje bem a compra de materiais para evitar desperdícios. Um bom projeto evita sobras e garante que você compre apenas o necessário.

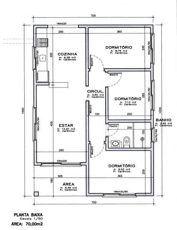
Plantas de Casas Pequenas com 2 Quartos: Para Famílias Compactas
Casas com dois quartos são ideais para casais, pequenas famílias ou quem precisa de um escritório em casa. O desafio é acomodar tudo sem que o espaço pareça apertado.
Quartos Bem Dimensionados: O ideal é que os quartos tenham espaço para uma cama de casal e um guarda-roupa. Evite quartos minúsculos que mal cabem uma cama.
Sala Integrada: A integração da sala com a cozinha e a área de jantar é fundamental. Isso cria um espaço social mais amplo e convidativo, mesmo com dois quartos.
Banheiro Social Eficiente: Um banheiro bem planejado, com boa ventilação e iluminação, é essencial. Considere modelos com box e nichos para shampoo, otimizando o espaço.
Para duas pessoas, um bom projeto de 2 quartos pode ter entre 50m² e 70m², com a área social integrada e quartos confortáveis.

Como Projetar uma Casa Pequena: Passo a Passo para Iniciantes
Projetar sua casa pequena pode parecer complicado, mas seguindo alguns passos, o processo fica mais claro e prazeroso.
1. Defina suas Necessidades: Quantas pessoas vão morar? Precisa de home office? Quais são seus hábitos? Liste tudo o que é essencial.
2. Pesquise e Inspire-se: Busque referências de plantas e estilos que te agradam. Sites como o Soprojetos oferecem ótimas ideias.
3. Contrate um Profissional: Um arquiteto ou engenheiro vai transformar suas ideias em um projeto viável, seguro e dentro das normas.
4. Pense na Funcionalidade: Cada centímetro conta. O profissional saberá otimizar o layout para que tudo funcione bem no dia a dia.

Plantas de Casas Pequenas Modernas: Estilo Contemporâneo em Espaços Reduzidos
Casas pequenas modernas combinam linhas limpas, materiais atuais e tecnologia. O resultado é um lar estiloso e super funcional.
Minimalismo Funcional: Cores neutras, poucos elementos decorativos e móveis com design clean são a base. A ideia é criar um ambiente organizado e visualmente agradável.
Grandes Aberturas: Janelas amplas e portas de vidro são marca registrada do estilo moderno. Elas trazem luz natural e integram a casa com o exterior, aumentando a sensação de amplitude.
Materiais Inovadores: O uso de concreto aparente, aço, vidro e revestimentos com texturas modernas confere um ar contemporâneo. Para um toque brasileiro, combine com madeira clara.
A iluminação embutida e as sancas de gesso são ótimas para criar um clima moderno e aconchegante à noite.
Lembre-se: o segredo de uma casa pequena de sucesso está no planejamento. Com as ideias certas, seu espaço será um refúgio de conforto e estilo!
Mais Inspirações para Você

Luz da manhã banhando o piso de cimento queimado.

Estante embutida aproveitando o vão da escada.

Bancada de madeira maciça integrada à parede de tijolos.

Cortina leve flutuando com a brisa da janela ampla.

Vaso de planta pendurado no canto do banheiro.

Textura do concreto aparente contrastando com o linho claro.

Prateleiras finas de aço sustentando livros coloridos.

Reflexo do espelho alongando o corredor estreito.

Luminária pendente iluminando a mesa de jantar compacta.

Porta de vidro deslizante abrindo para o jardim interno.

Azulejo hidráulico formando um tapete na cozinha.

Nicho na parede abrigando uma pequena escultura.

Raios de sol da tarde desenhando sombras na parede.

Manta jogada no sofá baixo convidando ao descanso.
Dicas Extras: O Pulo do Gato que Faz a Diferença
Essas são as manobras que separam um projeto bom de um excepcional.
Elas vêm da experiência real de quem já viu o que funciona.
O grande segredo? Está nos detalhes que ninguém te conta.
- Altura dos Armários: Leve-os até o teto. Aquele espaço de 30cm acima é um depósito de poeira perdido. Ganhe armazenamento extra sem ocupar um centímetro a mais no chão.
- Espelho Estratégico: Coloque um espelho grande na parede oposta à janela principal. Ele reflete a luz natural e dobra visualmente o ambiente. Custa menos de R$ 300 e o impacto é imediato.
- Piso Contínuo: Use o mesmo revestimento em todos os cômodos. A ausência de divisórias visuais no chão cria uma fluidez que amplia o espaço. Evite mudar o piso entre sala e cozinha.
- Portas de Correr: Substitua portas de abrir por modelos de correr embutidos na parede. Elas economizam o raio de giro de quase 1m² por porta. É um investimento que se paga em conforto.
- Tomadas no Teto: Para iluminação pendente ou spots direcionados. Evita fios aparentes descendo pelas paredes, mantendo a limpeza visual. Planeje isso na fase elétrica.
Aqui está o detalhe: Anote essas dicas no seu croqui. Elas não aumentam o orçamento, mas multiplicam o resultado.
Perguntas Frequentes (FAQ)
Essas são as dúvidas que mais aparecem nos meus projetos. Vamos direto ao ponto.
Qual o custo médio para construir uma casa pequena?
O valor fica entre R$ 2.000 e R$ 3.500 por m² construído, dependendo do acabamento e da região.
Para um projeto compacto de 50m², espere um investimento inicial a partir de R$ 100 mil. Lembre-se: o custo do metro quadrado em residências mínimas tende a ser um pouco maior, pois itens como cozinha e banheiro têm um custo fixo alto, independente do tamanho total.
É possível ter uma suíte em uma casa de 2 quartos e 60m²?
Sim, é perfeitamente viável com um layout inteligente.
O segredo está em integrar o banheiro ao quarto principal, eliminando corredores desnecessários. Use uma porta de acesso direto e otimize o espaço do banheiro com box de canto e lavatório suspenso. A suíte pode ocupar apenas 6m² e ainda assim ser funcional.
Quais são os erros mais comuns ao projetar uma residência compacta?
Os três principais erros são: corredores largos, divisórias excessivas e móveis sobressalentes.
Muitos projetistas mantêm corredores de 1,20m por hábito, quando 90cm são suficientes. Cada parede interna rouba espaço precioso. E móveis grandes demais, como sofás de 3 lugares em salas minúsculas, sufocam o ambiente. A regra é: priorize a circulação fluida e o mobiliário essencial.
O Projeto que Transforma Metros Quadrados em Qualidade de Vida
Você viu que projetar uma moradia compacta vai muito além de apenas ‘encaixar cômodos’.
É uma estratégia que combina layout inteligente, iluminação natural e escolhas certeiras de materiais.
Mas preste atenção: A maior armadilha é copiar plantas de casas grandes e apenas reduzir a escala. Isso nunca funciona.
O sucesso está em abraçar as limitações do espaço e transformá-las em virtudes: praticidade, aconchego e baixa manutenção.
Seu primeiro passo hoje? Pegue uma folha de papel e risque o esboço do seu terreno com as medidas exatas. É grátis e já coloca seus pés no mundo real.
Depois, marque onde o sol nasce e onde ele se põe. Essa simples ação vai guiar todas as suas decisões sobre janelas e posição dos ambientes.
Compartilhe essa diga com quem também está nessa jornada. E me conta nos comentários: qual é o maior desafio que você enfrenta ao pensar no seu cantinho?

